Product Classification
- SWITCHGEARS
- TRANSFORMERS
- CIRCUIT BREAKERS
- Outdoor Circuit Breakers
- FLW-12/24/40.5 series of Pole mounted SF6 Load break switch
- LW36-72.5 / 126 Outdoor HV. AC. SF6 circuit breaker
- ZW30-40.5 Series of outdoor high voltage vacuum circuit breakers
- ZW20-12 Series outdoor high-voltage vacuum circuit breaker
- FZW28-12F series AC high voltage demarcation vacuum automatic recloser
- Zw P-12 Series outdoor prepaid & metering vacuum circuit breaker
- ZW8-12 Series outdoor high-voltage vacuum circuit breaker
- zw32-12(G) Outdoor pole-mounted vacuum circuit breaker
- Indoor Middle Voltage Circuit Breakers
- MV. AC. Solid epoxy resin Insulated Vacuum Circuit Breaker
- ZN12-40.5 Series Indoor vacuum breaker (3AF breaker)
- ZN85-40.5 Truck Type Indoor High-voltage Vacuum Circuit Breaker
- FLRN36-12D Indoor middle voltage SF6 load break switch
- FN5-12 Series High voltage Indoor Load Break Switch
- FZRN25-12/24D Indoor (connected) high voltage vacuum switch / fuse combiner
- 10KV、24KV、40.5KV Series of indoor MV. functional handcars
- ZN63(VS1)-12 Series of indoor Side-fixed high voltage vacuum circuit breaker
- ZN63(VS1)Indoor drawable high voltage vacuum circuit breaker
- ZN63(VS1)-24 Indoor high voltage vacuum circuit breaker
- Indoor low voltage circuit breaker
- Outdoor Circuit Breakers
- SPECIAL ELECTRICAL APPARATUS
- ELECTRICAL POWER PROJECT SERVICES
- *****
Contact us
Tel : +86-577-62665555
+86-577-62668988
Business Email : Jacky.dxm@qq.com
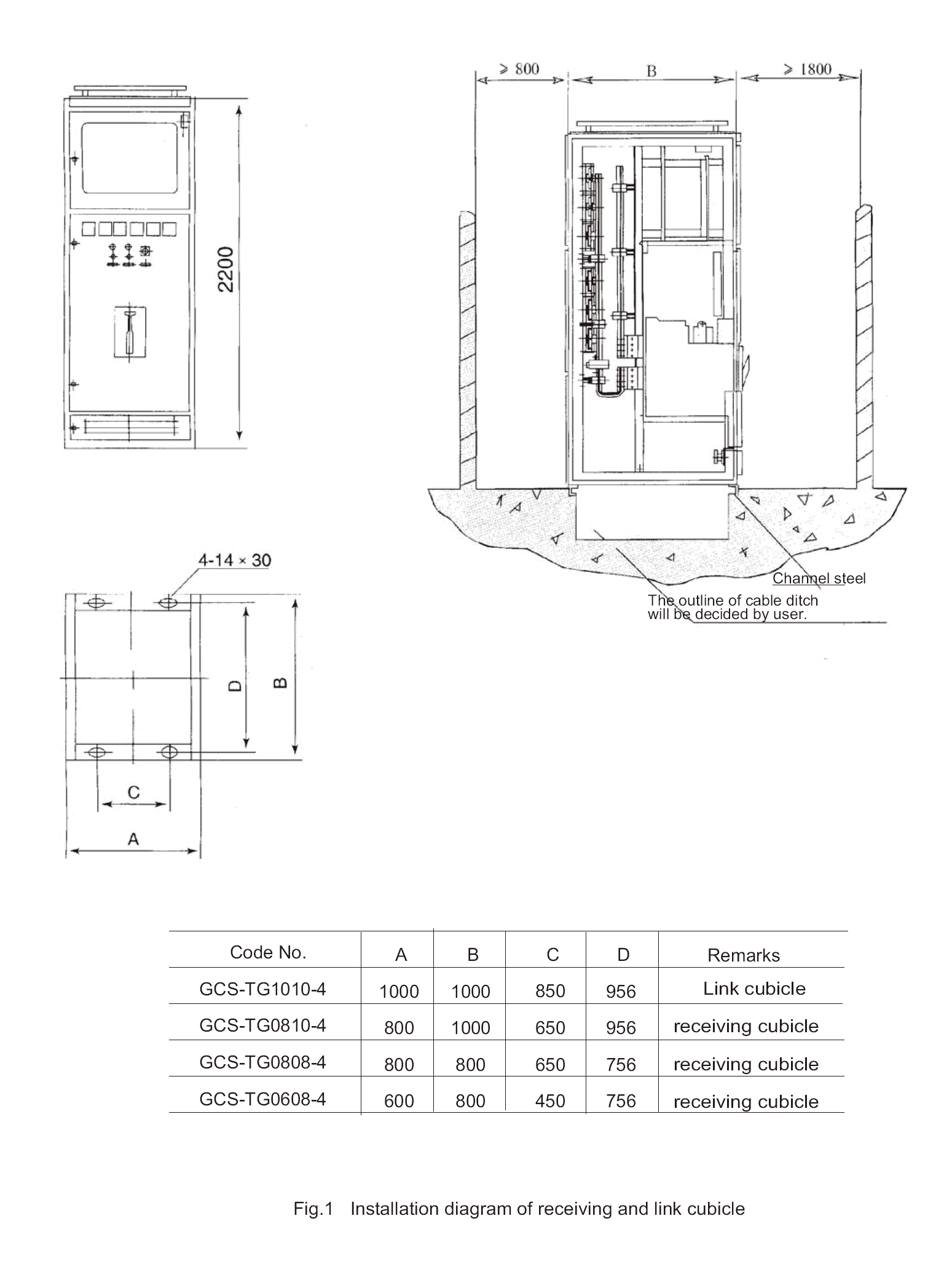
GCS Model LV. draw-out switchgear
Overview
Place of Origin: China (Mainland)
Brand Name: Canin electric
Model Number: GCS
Rated impulse withstand voltage(Ump): 8kV
Pollution degree: 3
Rated frequency: AC 50Hz (60Hz)
Rated insulation voltage: 800V
Power frequency withstand
Published in2018-08-03
3287 ViewsDetailed description


Other Similar Products




